€311,860
€3,088/m²
💰 ROI Analysis
AI-estimated ROI: -12%
Description
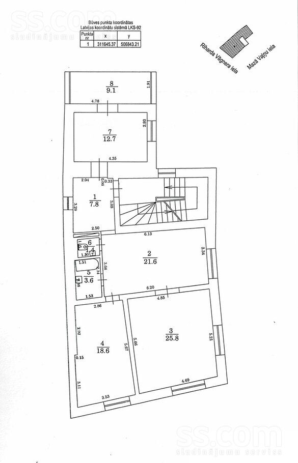
Dzīvoklis ar terasi renovētā ēkā.Plānojums:virtuve-viesistaba, 3 izolētas guļamistabas, no kurām vienai ir izeja uz terasi.Griestu augstums 2, 95 m.Apsaimniekošanas maksa ir 1, 30 eiro par m2, pārējā daļa tiek maksāta pēc skaitītāju rādījumiem, ieskaitot apkuri.Квартира с террасой в реновированном доме.Планировка:кухня-гостиная, 3 изолированные комнаты, у одной из которых есть выход на террасу.Высота потолков 2.95.Обслуживание 1, 30 евро за м2, остальная оплата по счетчикам, включая отопление.Pilsēta:RīgaRajons:centrsIela:Vāgnera 20[Karte]Istabas:4Platība:101 m²Stāvs:2/3Sērija:Renov.Mājas tips:MūraĒrtības:TeraseCena:311 860 € (3 087.72 €/m²)
🤖 AI Analysis
23 Feb 2026📸 Photo Assessment
The apartment appears to be in a generally good, albeit somewhat dated, condition. The living room has carpeted floors and plain white walls. The kitchen is functional with light wood cabinetry and appliances, but could benefit from a modern refresh. Overall, the property is clean and well-maintained but lacks contemporary design.
📋 Analyst Notes
This apartment is located in a desirable Centrs district, and is in a renovated building. However, the current asking price of €3,088/m² is already above the average renovated market rate of €2,960/m². With an estimated renovation cost of €700/m², the projected ROI is negative, making this an unsuitable target for a renovation-focused investor aiming for high returns. It is not cheap enough to justify purchase even as a 'move-in-ready' option.
🚩 Red Flags
Negative ROI
Tags
📊 Comparable Properties (5 within 300m)
Avg: €2,959/m² — used for ROI calculation