Basement / Semi-basement — not suitable for standard residential buy-to-flip investment.
€41,261
€1,214/m²
💰 ROI Analysis
AI-estimated ROI: 23%
Description
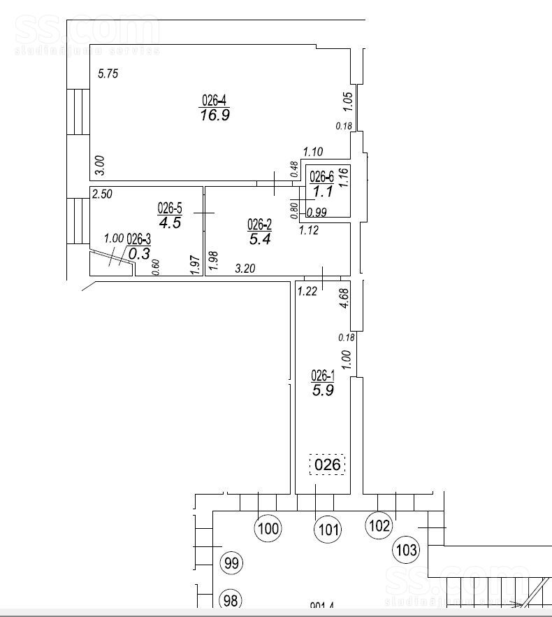
Pārdošanā saulains 1-istabas (pēc pārplānošanas 2-istabu) dzīvoklis Grīziņkalnā, A. Čaka ielā 133a. Dzīvoklis var būt arī kā ļoti labs un drošs investīciju objekts, jo apkaime ir attīstīta un pieprasīta. Ēka atrodas izcilā lokācijā – tikai dažu soļu attālumā atrodas Centra sporta laukums un bērnudārzs, netālu vairākas skolas, 3 min. gājiena attālumā sabiedriskā transporta pieturvietas, 13 min. gājiena attālumā iepirkšanās centrs "Domina".Par dzīvokli:+ Nr. 101+ 34.1 m2, 1 istaba, atsevišķa virtuve, pieliekamais, koridors. Šobrīd dzīvoklī tiek veikta jauna kanalizācijas un ūdens stāvvadu izbūve, kā rezultātā dzīvoklim būs jauns, funkcionāls un saskaņots plānojums.+ 4.stāvs, iekšpagalma ēka, logi vērsti uz zaļu pagalmu, dienvid-rietumu puse.+ Augstie griesti – 2.85 m.+ Dzīvoklim nepieciešams visaptverošs remonts.+ Centralizēta gāzes apkure (ēkai pagrabā ir savs ekonomisks gāzes katls), centralizēts pilsētas aukstais ūdens un kanalizācija, karstais ūdens tiek nodrošināts izmantojot centralizēto gāzes katlu.Par ēku:+ Pamatīga ķieģeļu mūra ēka, celta 1890.gadā.+ Ēkai kopskaitā ir 6 stāvi, lifts nav.+ Slēgta un kopta kāpņu telpa.+ Ēku apsaimnieko SIA “Namu Guru”, apsaimniekošanas maksa – 0.85 EUR/m²+PVN, uzkrājums 0.15 EUR/m2.+ Iekšpagalmā ir bruģētas autostāvvietas (iegādājamas atsevišķi), velo novietne.+ Zeme īpašumā.Papildus:+ Ir iespējams iegādāties vienu vai vairākas iekšpagalmā izvietotas autostāvvietas, autostāvvietas cena 12500 EUR.+ Ir ispējams iegādāties pagrabstāvā izbūvētas noliktavas telpas, atkarībā no platības cenu amplitūda 2500 EUR - 3300 EUR.Pilsēta:RīgaRajons:centrsIela:Čaka 133a[Karte]Istabas:1Platība:34 m²Stāvs:4/6Sērija:P. karaMājas tips:MūraĒrtības:Parkošanas vietaCena:41 261 € (1 213.56 €/m²)
🤖 AI Analysis
23 Feb 2026📸 Photo Assessment
The apartment is in a highly dilapidated state, featuring worn wooden floors, peeling wallpaper, exposed pipes in the kitchen, and dated fixtures. It clearly requires a full gut renovation. Good natural light is visible from the windows overlooking a green courtyard.
📋 Analyst Notes
This apartment presents a strong renovation opportunity for the investor. The low purchase price combined with the critical need for renovation and a solid projected sale price based on nearby comps offers a good ROI potential of 22.82%. The high ceilings and inner courtyard location are positives. The ongoing work on plumbing lines suggests some necessary improvements are already in progress, which could be beneficial.
🚩 Red Flags
full renovation needed, exposed pipes
Tags
✍️ Your Feedback
📊 Comparable Properties (10 within 300m)
Avg: €2,687/m² — used for ROI calculation