← Back
⚠️

Basement / Semi-basement — not suitable for standard residential buy-to-flip investment.

€69,630

1.0/10

€557/m²

4
Rooms
125.0m²
Area
1/6
Floor

📊 ROI Scenarios

328%
Quick Flip
Sell as-is
89%
Standard Reno
€700/m²
56%
Massive Reno
€1200/m²

💰 ROI Analysis

Purchase price €69,630
Renovation cost (~€700/m²) €87,500
Total investment €157,130
Comp avg €/m² (23 listings within 500m) €2,381/m²
Projected sale (125.0m² × €2,381) €297,641
Estimated profit / ROI €140,511 / 89%

Details

Location Centrs, Čaka 133
Building type P. kara
Published 18.02.2026 7d
🛗 Elevator 🚗 Parking 🔥 Local heating
📍 Location

Description

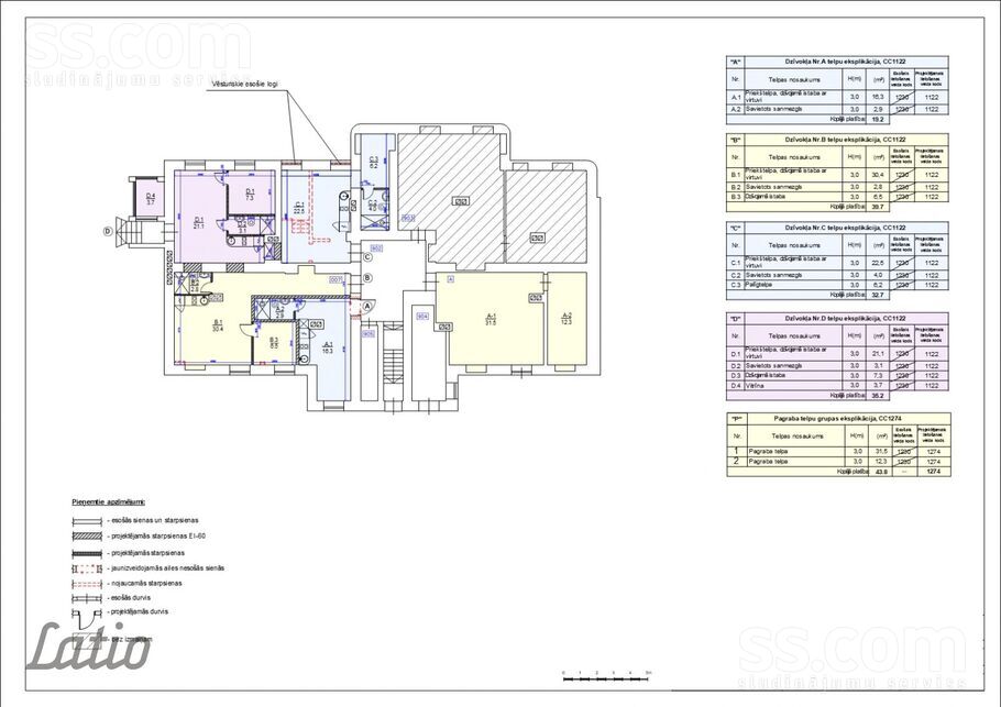
Pārdošanā plašas telpas Grīziņkalnā, A. Čaka ielā 133a. Šobrīd lietošanas veids ir tirdzniecības telpu grupa, bet to ir iespējams nomainīt uz dzīvojamo telpu grupu.Telpas var būt arī kā ļoti labs un drošs investīciju objekts, jo apkaime ir attīstīta un pieprasīta. Ēka atrodas izcilā lokācijā – tikai dažu soļu attālumā atrodas Centra sporta laukums un bērnudārzs, netālu vairākas skolas, 3 min. gājiena attālumā sabiedriskā transporta pieturvietas, 13 min. gājiena attālumā iepirkšanās centrs "Domina".Fotogrāfijās ir piedāvāta arhitekta skice, kā šīs telpas pārplānot un sadalīt 4 atsevišķos dzīvokļos.Par telpām:+ Nr. 30+ 124.6 m2.+ Puspagrabs, bet ņemot vērā augstos griestus un vairākus logus, telpas ir gaišas un mājīgas, logi vērsti gan uz ielas pusi, gan pagalmu.+ 3 ieejas.+ Augstie griesti – oriģinālais griestu augstums 3 m.+ Telpām nepieciešams remonts.+ Centralizēta gāzes apkure (ēkai pagrabā ir savs ekonomisks gāzes katls), centralizēts pilsētas aukstais ūdens un kanalizācija, karstais ūdens tiek nodrošināts izmantojot centralizēto gāzes katlu.Par ēku:+ Pamatīga ķieģeļu mūra ēka, celta 1922.gadā.+ Ēkai kopskaitā ir 6 stāvi, lifts nav.+ Slēgta un kopta kāpņu telpa.+ Ēku apsaimnieko SIA “Namu Guru”, apsaimniekošanas maksa – 0.85 EUR/m²+PVN, uzkrājums 0.15 EUR/m2.+ Iekšpagalmā ir bruģētas autostāvvietas (iegādājamas atsevišķi), velo novietne+ Zeme īpašumāPapildus:+ Ir iespējams iegādāties vienu vai vairākas iekšpagalmā izvietotas autostāvvietas, autostāvvietas cena 12500 EUR.+ Ir ispējams iegādāties pagrabstāvā izbūvētas noliktavas telpas, atkarībā no platības cenu amplitūda 2500 EUR - 3300 EUR.Pilsēta:RīgaRajons:centrsIela:Čaka 133[Karte]Istabas:4Platība:125 m²Stāvs:1/6Sērija:P. karaMājas tips:MūraĒrtības:Parkošanas vietaCena:69 630 € (557.04 €/m²)

🤖 AI Analysis

23 Feb 2026
1.0
Deal Score
9
Reno Potential

📸 Photo Assessment

The property appears to be a large, open commercial space with exposed brick, tiled floors, and some sections of wood laminate. It is in an unfinished or partially demolished state, indicating a full renovation is required. Despite being described as a semi-basement, there are multiple windows suggesting some natural light.

📋 Analyst Notes

This property, despite its low purchase price and high renovation potential, is a semi-basement commercial space explicitly listed as requiring conversion to residential. This falls under the critical rule for basement properties and commercial-to-residential conversions, immediately lowering the deal score significantly. While the location and potential to split into multiple units are attractive, the inherent issues make it unsuitable for the investor's primary strategy.

🚩 Red Flags

commercial_space_conversion, oversized_for_residential_conversion, semi_basement

Tags

renovation high_ceiling basement period_building centrs

✍️ Your Feedback

📊 Comparable Properties (10 within 300m)

Avg: €2,687/m² — used for ROI calculation