← Back

€160,000

7.3/10

€2,222/m²

4
Rooms
72.0m²
Area
5/6
Floor

💰 ROI Analysis

Purchase price €160,000
Renovation cost (~€700/m²) €50,400
Total investment €210,400
Comp avg €/m² (38 listings within 500m) €3,141/m²
Projected sale (72.0m² × €3,141) €226,158
Estimated profit / ROI €15,758 / 7%

AI-estimated ROI: 12%

Details

Location Centrs, Stabu 6
Building type P. kara
Published 23.02.2026 1d
📍 Location

Description

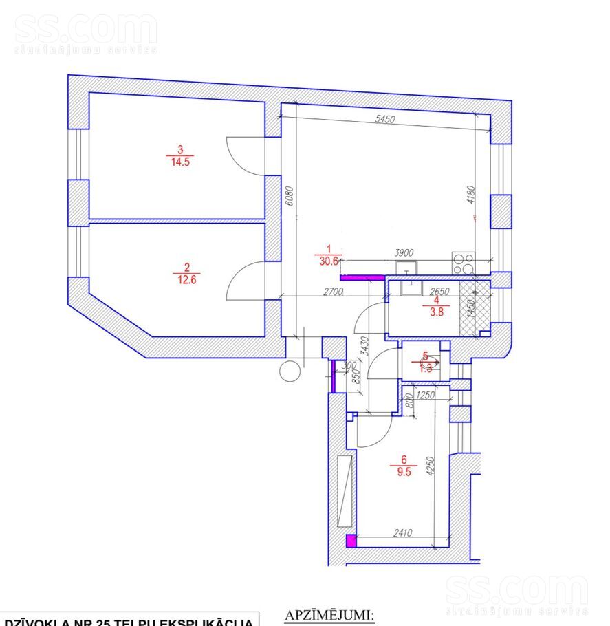
Jauns dzivoklis pec kapitala remonta. Stabu un Skolas krustojumā.3 izoletas guļamistabas un 30m2 viesuistaba ar virtuvi. Vannas istaba un tualets atseviški.Pēc remonta neviens nav dzīvojis – viss ir jauns. Vesturiskie radiatori restaureti. Visas komunikacijas un apdares materiali ir jauni.Maja atrodas pagalmā.Rezerveta parkošanas vieta slegta pagalmā.Plānojums saskaņots būvvaldē un nodots ekspluatācijā.Pārdod īpašnieks.(Starpniekus lūdzu netraucēt)Pilsēta:RīgaRajons:centrsIela:Stabu 6[Karte]Istabas:4Platība:72 m²Stāvs:5/6Sērija:P. karaMājas tips:ĶieģeļuĒrtības:Parkošanas vietaCena:160 000 € (2 222.22 €/m²)

🤖 AI Analysis

23 Feb 2026
7.3
Deal Score
1
Reno Potential
12%
Est. ROI

📸 Photo Assessment

The photos show a freshly renovated apartment with new herringbone laminate flooring, freshly painted walls, and restored historic radiators. The overall condition appears excellent and move-in ready, with no visible signs of wear or damage.

📋 Analyst Notes

This apartment has already undergone a full renovation, as stated in the description and evidenced by the photos. While our investor typically targets properties for renovation, this one is already in excellent, newly renovated condition and priced attractively at €2,222/m² compared to the €3,141/m² market rate for renovated units. The calculated ROI of 12.02% is decent, considering it requires no further investment in renovation, making it a potentially quick flip or rental asset. The parking space is a significant bonus for Riga Centrs.

🚩 Red Flags

None evident from description or photos

Tags

move_in_ready good_floor no_balcony centrs parking period_building good_natural_light

📊 Comparable Properties (10 within 300m)

Avg: €2,515/m² — used for ROI calculation