← Back
⚠️

Basement / Semi-basement — not suitable for standard residential buy-to-flip investment.

€41,261

2.0/10

€1,214/m²

1
Rooms
34.0m²
Area
4/6
Floor

💰 ROI Analysis

Purchase price €41,261
Renovation cost (~€700/m²) €23,800
Total investment €65,061
Comp avg €/m² (22 listings within 500m) €2,424/m²
Projected sale (34.0m² × €2,424) €82,402
Estimated profit / ROI €17,341 / 27%

AI-estimated ROI: 31%

Details

Location Centrs, Čaka 133A
Building type P. kara
Published 18.02.2026 7d
📍 Location

Description

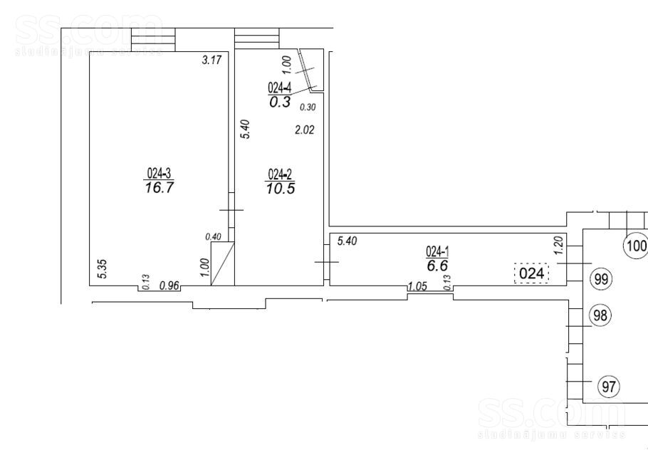
Pārdošanā saulains 1-istabas (pēc pārplānošanas 2-istabu) dzīvoklis Grīziņkalnā, A. Čaka ielā 133a.Dzīvoklis var būt arī kā ļoti labs un drošs investīciju objekts, jo apkaime ir attīstīta un pieprasīta. Ēka atrodas izcilā lokācijā – tikai dažu soļu attālumā atrodas Centra sporta laukums un bērnudārzs, netālu vairākas skolas, 3 min. gājiena attālumā sabiedriskā transporta pieturvietas, 13 min. gājiena attālumā iepirkšanās centrs "Domina".Par dzīvokli:+ Nr. 99+ 34.1 m2, 1 istaba, atsevišķa virtuve, pieliekamais, koridors. Šobrīd dzīvoklī tiek veikta jauna kanalizācijas un ūdens stāvvadu izbūve, kā rezultātā dzīvoklim būs jauns un funkcionāls plānojums.+ 4.stāvs, iekšpagalma ēka, austrumu puse.+ Augstie griesti – 2.85 m.+ Dzīvoklim nepieciešams visaptverošs remonts, krāsns demontējama.+ Centralizēta gāzes apkure (ēkai pagrabā ir savs ekonomisks gāzes katls), centralizēts pilsētas aukstais ūdens un kanalizācija, karstais ūdens tiek nodrošināts izmantojot centralizēto gāzes katlu.Par ēku:+ Pamatīga ķieģeļu mūra ēka, celta 1890.gadā.+ Ēkai kopskaitā ir 6 stāvi, lifts nav.+ Slēgta un kopta kāpņu telpa.+ Ēku apsaimnieko SIA “Namu Guru”, apsaimniekošanas maksa – 0.85 EUR/m²+PVN, uzkrājums 0.15 EUR/m2.+ Iekšpagalmā ir bruģētas autostāvvietas (iegādājamas atsevišķi), velo novietne.+ Zeme īpašumā.Papildus:+ Ir iespējams iegādāties vienu vai vairākas iekšpagalmā izvietotas autostāvvietas, autostāvvietas cena 12500 EUR.+ Ir ispējams iegādāties pagrabstāvā izbūvētas noliktavas telpas, atkarībā no platības cenu amplitūda 2500 EUR - 3300 EUR.Pilsēta:RīgaRajons:centrsIela:Čaka 133a[Karte]Istabas:1Platība:34 m²Stāvs:4/6Sērija:P. karaMājas tips:MūraĒrtības:Parkošanas vietaCena:41 261 € (1 213.56 €/m²)

🤖 AI Analysis

23 Feb 2026
2.0
Deal Score
9
Reno Potential
31%
Est. ROI

📸 Photo Assessment

The apartment is in poor, dated condition with worn-out flooring, peeling paint in some areas, and an old-fashioned kitchen and bathroom setup. It clearly requires a full gut renovation to meet modern standards.

📋 Analyst Notes

This apartment presents a strong renovation ROI opportunity. The purchase price is very attractive, and the high ceilings (2.85m) combined with the central location in Centrs and good floor (4th of 6) add significant value post-renovation. The description also mentions new plumbing being installed, which is a big plus for renovation ease. The estimated ROI of 30.6% makes this a compelling target for a renovation-focused investor.

🚩 Red Flags

none

Tags

renovation high_ceiling good_floor no_balcony centrs busy_street period_building good_natural_light basement

✍️ Your Feedback

📊 Comparable Properties (10 within 300m)

Avg: €2,687/m² — used for ROI calculation