€190,000
€2,317/m²
💰 ROI Analysis
AI-estimated ROI: -22%
Description
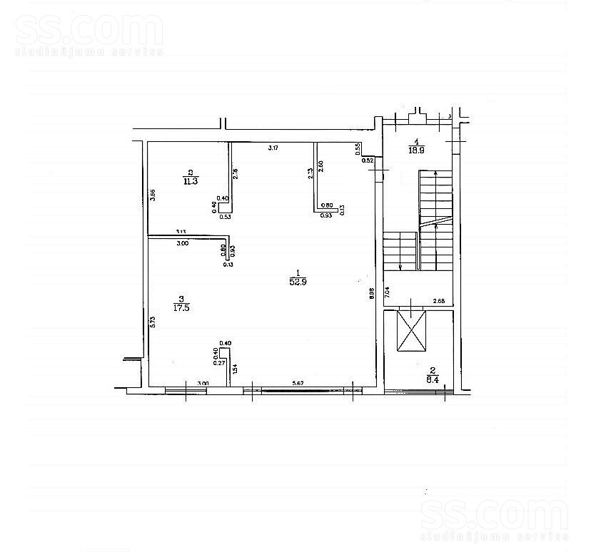
Plašs 2-istabu dzīvoklis kopā ar pazemes autostāvvietu projektā "Tomsona terases".Par īpašumu :+ Ēkā tiek nodrošināta fiziskā apsardze, videonovērošana, kā arī pieejama recepcija viesu uzņemšanai+ Augstas klases ēka ar jumta terasi un panorāmas skatu uz pilsētu+ Slēgtā, labiekārtotā teritorijā pieejams bērnu rotaļu laukums+ Mēbeles un sadzīves tehnika paliek jaunajiem īpašniekiem+ Dzīvoklis atbrīvots un bez jebkādiem apgrūtinājumiem+ Apsaimnieko biedrība "Namīpašums Tomsona 30"+ Ēkas ieeja aprīkota ar kodu, čipu un domofonu+ Dzīvoklī ierīkota kavlitatīva skaņas sistēma+ Sanitārajā mezglā un virtuvē siltās grīdas+ Individuāli regulējama centrālā apkure+ Zemes domājamās daļas īpašumā+ Sakārtota, slēgta kāpņutelpa+ Klusi un mierpilni kaimiņi+ Pazemes autostāvvieta+ Augstie griesti (~2.8m)Plānojums :+ Viesistaba apvienota ar virtuvi+ Apvienots sanitārais mezgls+ Izolēta istaba+ PriekštelpaIzcila atrašanās vieta – Rīgas centrā, klusā un sakoptā apkārtnē ar attīstītu infrastruktūru, sabiedrisko transportu, veikaliem, kafejnīcām, skolām un parkiem. Ātra un ērta nokļūšana visos pilsētas virzienos.Zvaniet vai rakstiet un noteikti varēsim vienoties par Jums ērtāko apskates laiku.Pēc vajadzības palīdzam mūsu klientiem ar izdevīgāko hipotekārā kredīta noformēšanu, kā arī piedāvājam sertificēta vērtētāja pakalpojumus.Pilns juridisks atbalsts līdz pat atslēgu nodošanai jaunajiem īpašniekiem...Просторная 2-комнатная квартира с подземной парковкой в проекте Tomsona Terraces.О недвижимости :+ В здании обеспечена физическая охрана, видеонаблюдение, а также есть ресепшн для приема гостей+ Высококлассное здание с террасой на крыше и панорамным видом на город+ Закрытая, благоустроенная территория с детской площадкой+ Мебель и бытовая техника остаются новым владельцам+ Квартира освобождена и без каких-либо обременений+ Управляется объединением собственников Namīpašums Tomsona 30+ Вход в здание оснащен кодом, чипом и домофоном+ В квартире установлена качественная аудиосистема+ Тёплые полы в ванной и на кухне+ Индивидуальная регулировка центрального отопления+ Владение долей земельного участка+ Чистая, закрытая лестничная клетка+ Тихие и спокойные соседи+ Подземная парковка+ Высокие потолки (~2, 8 м)Планировка :+ Гостиная объединена с кухней+ Совмещённый санузел+ Изолированная комната+ ПрихожаяОтличное расположение – в центре Риги, в тихом и ухоженном районе с развитой инфраструктурой, общественным транспортом, магазинами, кафе, школами и парками. Быстрый и удобный доступ ко всем районам города.Звоните или пишите, и мы обязательно договоримся о просмотре в удобное для вас время.При необходимости помогаем нашим клиентам с оформлением наиболее выгодного ипотечного кредита, а также предлагаем услуги сертифицированного оценщика.Полная юридическая поддержка до передачи ключей новым владельцам...Spacious 2-room apartment with underground parking in the “Tomsona Terraces” project.About the property :+ The building provides physical security, video surveillance, and a reception for guest check-in+ High-class building with a rooftop terrace and panoramic city views+ Closed, well-maintained area with a children’s playground+ Furniture and appliances remain for the new owners+ The apartment is vacant and free of any encumbrances+ Managed by the homeowners’ association “Namīpašums Tomsona 30”+ Building entrance equipped with code, chip, and intercom+ High-quality sound system installed in the apartment+ Heated floors in the bathroom and kitchen+ Individually adjustable central heating+ Ownership of the land share+ Clean, secure, and closed stairwell+ Quiet and peaceful neighbors+ Underground parking+ High ceilings (~2.8 m)Layout :+ Living room combined with kitchen+ Combined bathroom+ Separate bedroom+ Entrance hallExcellent location – in the center of Riga, in a quiet and tidy area with developed infrastructure, public transport, shops, cafes, schools, and parks. Quick and convenient access to all parts of the city.Call or write, and we can arrange a viewing at a time convenient for you.If needed, we help our clients with favorable mortgage arrangements and offer certified appraiser services.Full legal support provided up to handing over the keys to the new owners.Pilsēta:RīgaRajons:centrsIela:Tomsona 30[Karte]Istabas:2Platība:81.70 m²Stāvs:2/9/liftsSērija:Jaun.Mājas tips:MūraĒrtības:Parkošanas vietaCena:190 000 € (2 325.58 €/m²)
🤖 AI Analysis
23 Feb 2026📸 Photo Assessment
The apartment appears to be in very good, modern condition with high-quality finishes, built-in sound system, and a contemporary open-plan layout. The kitchen and bathroom areas also seem well-maintained and updated. It is clearly a move-in ready apartment.
📋 Analyst Notes
This apartment is already well-renovated, leaving no room for value-add through renovation for our investor. The purchase price of €190,000 combined with estimated renovation costs of €57,400 (which wouldn't be necessary) puts the total investment significantly above the projected market sale price of €189,420, resulting in a negative ROI. This property does not align with the investor's strategy of buying cheap and renovating.
🚩 Red Flags
Overpriced for renovation strategy, already renovated, no renovation potential
Tags
📊 Comparable Properties (10 within 300m)
Avg: €2,226/m² — used for ROI calculation