← Back

€199,000

7.3/10

€2,726/m²

3
Rooms
73.0m²
Area
3/5
Floor

💰 ROI Analysis

Purchase price €199,000
Renovation cost (~€700/m²) €51,100
Total investment €250,100
Comp avg €/m² (14 listings within 500m) €3,500/m²
Projected sale (73.0m² × €3,500) €255,489
Estimated profit / ROI €5,389 / 2%

AI-estimated ROI: 12%

Details

Location Centrs, Valdemāra 17
Building type Renov.
Published 19.02.2026 5d
📍 Location

Description

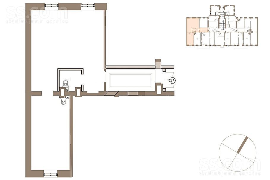
Dzīvoklis ar neatkārtojamu skatu uz Latvijas Nacionālo māksalas muzeju.Krišjāņa Valdemāra 17A ir nešaubīgi lieliska vieta, kur pēc saviem ieskatiem sev mājokli iekārtot patiesiem Eiropas vēsturisko pilsētu cienītājiem, kā arī, investoriem, kas saprot nama lokācijas nozīmi īpašuma ilgtermiņa vērtībā.Pirkuma cenā iekļauts+Dzīvokļi bez iekšējās apdares (iespējams vienoties par apdares veicējiem)+Būvvaldē saskaņots pārbūves projekts trīsistabu dzīvokļa izbūvei+Atjaunota ielas fasāde+Divcauruļu centrālā apkure ar skaitītājiem, līdz dzīvokļa īpašuma robežai+Elektro pievads līdz dzīvoklim ar individuālu skaitītāju+Jauni kanalizācijas stāvvadi un ūdens pievadi+Restaurēta kāpņu telpa (2026. gada pavasaris)+Individuāli ventilācijas kanāli sanmezgliem un pieslēgvietas tvaika nosūcējiem+KONE lifts (2025. gada pavasaris)+Pagalmas fasādes siltināšana, pagalma labiekārtošana(2026. gada pavasaris)PIEDĀVĀJAM SADARBĪBU AR PĀRBAUDĪTIEM UN UZTICAMIEM PARTNERIEM DZĪVOKĻA IEKŠDARBU VEIKŠANAI, ATBILSTOŠI JŪSU IECERĒM UN VĒLMĒM.Par iespēju veikt dzīvokļu remontu un saņemt finansējumu mājokļa iegādei, meklējiet informāciju mūsu mājas lapā.Pilsēta:RīgaRajons:centrsIela:Valdemāra 17[Karte]Istabas:3Platība:73 m²Stāvs:3/5/liftsSērija:Renov.Mājas tips:MūraCena:199 000 € (2 726.03 €/m²)

🤖 AI Analysis

23 Feb 2026
7.3
Deal Score
9
Reno Potential
12%
Est. ROI

📸 Photo Assessment

The apartment is currently a shell, completely unfurnished and unrenovated, presenting a blank canvas for a full renovation. Existing wooden floors appear worn and will likely need replacement or significant restoration. Walls are exposed to different stages of plastering, indicating a complete overhaul is required.

📋 Analyst Notes

This apartment offers significant renovation potential in a prime Centrs location, directly overlooking the Art Museum. The listed price allows for a decent ROI after a full renovation, despite the high renovation cost estimate. The property's current 'shell' state and the newly renovated building facade, new utilities to the apartment boundary, and planned stairwell restoration (2026) are strong positives for an investor. While the ROI is not exceptionally high (12.37%), the premium location and the property's size fit the investor's criteria.

🚩 Red Flags

none

Tags

renovation high_ceiling good_floor no_balcony centrs quiet_street period_building good_natural_light

✍️ Your Feedback

📊 Comparable Properties (10 within 300m)

Avg: €3,738/m² — used for ROI calculation