← Back

€375,000

7.5/10

€3,024/m²

3
Rooms
124.0m²
Area
4/7
Floor

💰 ROI Analysis

Purchase price €375,000
Renovation cost (~€700/m²) €86,800
Total investment €461,800
Comp avg €/m² (24 listings within 500m) €3,413/m²
Projected sale (124.0m² × €3,413) €423,199
Estimated profit / ROI €-38,601 / -8%

AI-estimated ROI: 0%

Details

Location Centrs, Jeruzalemes 10
Building type Jaun.
Published 05.02.2026 19d
📍 Location

Description

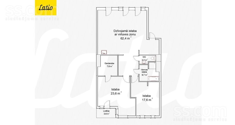
Tiek pārdots gaišs un plašs dzīvoklis ar balkonu Rīgas Klusajā centrā, Jeruzalemes ielā 10. Dzīvoklis atrodas ēkas 4. stāvā un tā kopējā platība ir 124, 2m2 no kuriem 3.6m2 aizņem balkons. Plānojums paredz plašu dzīvojamo istabu apvienojumā ar virtuvi, no kuras, caur brīnišķīgiem franču balkoniem, paveras skaists un dzīvs skats uz Dzirnavu ielu. Divas izolētas guļamistabs no kurām vienā ir tieša izeja uz balkonu un izbūvētā atsevišķa skapja istaba. Guļamistabu logi vērsti uz klusu iekšpagalmu kas nodrošinās klusumu un mieru. Augstas kvalitātes apdare un mēbeles, ergonomiska virtuves iekārta ar visu nepieciešamo aprīkojumu. Slēdzama un vienmēr sakopta kāpņu telpa. Netālu atrodas rīgas labākie restorāni un kafejnīcas, kā arī veikali, skolas, bērnudārzi, kā arī sabiedriskā transporta pieturvietas.ENG:A bright and spacious apartment with a balcony is for sale in Riga’s Quiet Centre, at 10 Jeruzalemes Street. The apartment is located on the 4th floor of the building and has a total area of 124.2 m², of which 3.6 m² is the balcony.The layout includes a large living room combined with a kitchen, from whichthrough beautiful French balconiesyou can enjoy a lovely and lively view of Dzirnavu Street. There are two separate bedrooms, one of which has direct access to the balcony and an additional built-in walk-in closet. The bedroom windows face a quiet inner courtyard, ensuring peace and calm.The apartment features high-quality finishing and furniture, as well as an ergonomic kitchen equipped with everything necessary. The staircase is secured, clean, and well-maintained. Nearby you will find some of Riga’s best restaurants and cafés, as well as shops, schools, kindergartens, and public transport stops.Pilsēta:RīgaRajons:centrsIela:Jeruzalemes 10[Karte]Istabas:3Platība:124 m²Stāvs:4/7/liftsSērija:Jaun.Mājas tips:MūraĒrtības:BalkonsCena:375 000 € (3 024.19 €/m²)

🤖 AI Analysis

23 Feb 2026
7.5
Deal Score
1
Reno Potential
0%
Est. ROI

📸 Photo Assessment

The photos show a highly renovated, modern apartment with excellent finishes, including wooden floors, a contemporary kitchen, and clean white walls. The property appears to be in move-in ready condition, requiring no immediate renovation.

📋 Analyst Notes

This apartment is already well-renovated and appears to be in excellent condition, negating the investor's primary strategy of buying cheap for renovation. While the location in Riga's Quiet Center is desirable, the current price per square meter is already close to the renovated comparable average, leaving very little room for value add through renovation. The calculated ROI is low at 4%, and the area exceeds the investor's target range, making it a less suitable acquisition for a renovation-focused strategy. However, its 'move-in ready' condition and good quality finishing make it an attractive option for a different type of investor or end-user.

🚩 Red Flags

Area exceeds target range (124m2 vs 35-115m2), minimal renovation potential for target investor

Tags

move_in_ready good_floor balcony centrs new_build good_natural_light quiet_street

📊 Comparable Properties (10 within 300m)

Avg: €3,756/m² — used for ROI calculation